Leírás
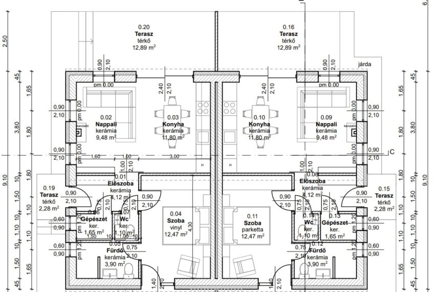
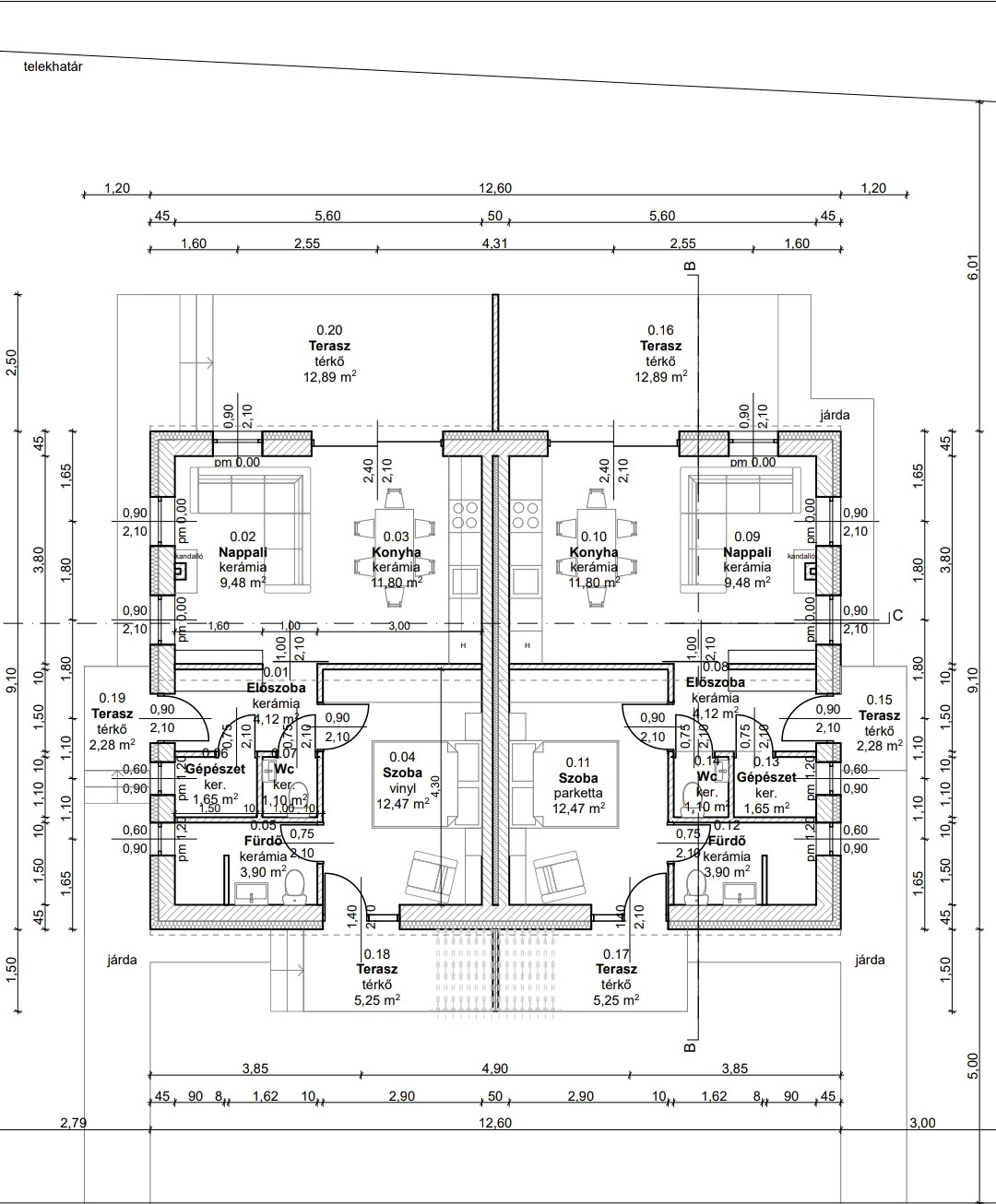
Balatontól autóval 10 percre, Veszprémtől 5 percre, Szentkirályszabadján, csendes nyugodt környezetben eladó egy újépítésű ikerház még mind két 54nm-s egyszintes jó tervezésű, energiatakarékos lakása, saját 192nm-es önálló kerttel.
A ház amerikaikonyhás nappalijából lehet kimenni a hátsókertre néző 13nm-es, intim teraszra. A nappali mellett még kialakításra került egy szoba (12,5nm) egy fürdőszoba, mosdó, előszoba valamint gépészeti helyiség. A gépészeti helyiségben kapott helyet a mosógép kiállás is.
Autóbeállási lehetőség ki lett építve a kerten belül.
Főbb Műszaki adatok:
Falazat: Porotherm 30 N+F tégla, 15cm vastag dryvit hőszigetelés + színes vakolat, válaszfal 10cm tégla,
A lakások között, két fal és közötte szigetelés lesz, így biztosítva a békés egymás mellett élést.
Tető: cserép héjazatú tető (antracit),
Nyílászárók:fehér, 3 rétegű hőszigetelő üvegezésű műanyag nyílászárók (6 kamrás), elektromos, telefonosappal irányítható alumínium redőnyök, szúnyogháló, acélbetétes biztonsági ajtó (kívül antracit belül fehér),
nappaliban a terasz felé bukó/ toló ajtó, másik bukó/nyíló ajtó
Melegvíz, fűtés: Panasonic 7 vagy 8 kw os beépített víztartályos hőszivattyú padlófűtéssel, fürdőszobákban törölköző szárítós radiátorok
Extrák: kandalló kémény, riasztókiépítés, teraszok és járdák burkolata viacolor kőburkolat (6cm vastag), elektromos redőnyök, beépített konyhabútor, főzőlappal és sütővel
A környék nagyon csendes, nyugodt, igazi pihenési lehetőséget nyújt. A Balatonhoz gyönyörű panorámás út vezet, igazi tengerparti élmény. Autóval minden pár perc alatt elérhető. Veszprém közelsége ami 5 perc autóút, a bevásárlás is nagyon kényelmes, de helyben is több kis bolt, kávézó található.
Budapesttől csak 113km a távolság, ami autóval 1 óra 30 perc alatt kényelmesen megtehető.
Ár: 70.000.000,- Ft
Ingatlanok jelenleg bérlők lakják, így elsősorban befektetőknek ajánljuk. Költözés 2026 június elsejével lehetséges.
További részletek
- Ingatlanazonosító
- BIX-00446
- Ár
- 70.000.000 Ft. Ft
- Státusz
- Eladó
- Elhelyezkedés
- Szentkirályszabadja
- Típus
- ház
- Ház típusa
- ikerház
- Emelet
- Méret
- 54m²
- Méret
- 192m²
- Háló
- 1
- Fürdő
- 1
- Építési mód
- tégla
- Állapot
- újépítésű
- Fűtés
- elektromos
- Közművek
- villany csatorna víz

















