Leírás
Újépítésű, örökpanorámás ikerházi lakások eladók!
Törökbálint egyik legszebb utcájában eladó egy most épülő ikerház még mind két lakása.
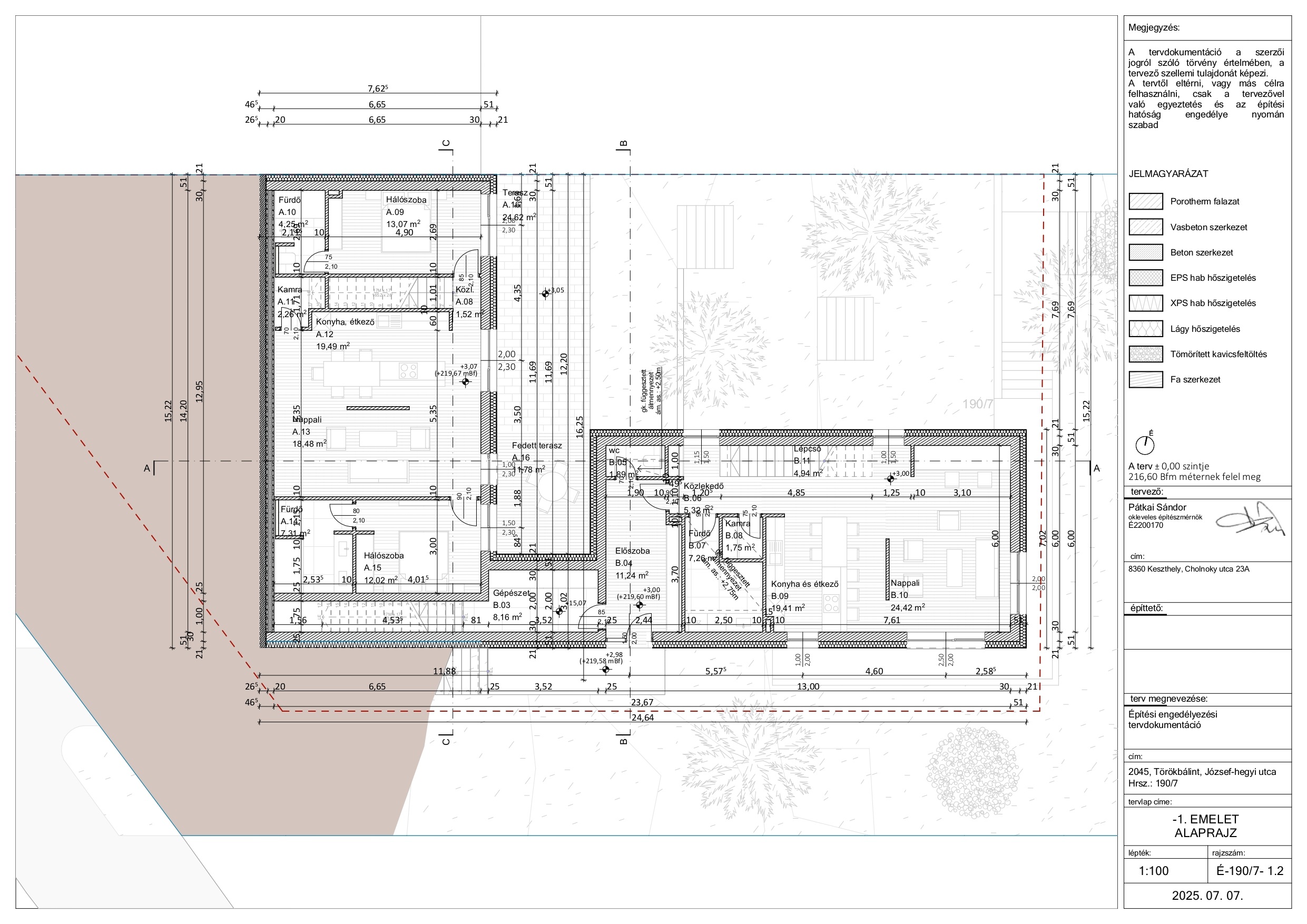
142nm lakás elrendezése:
1. szint:
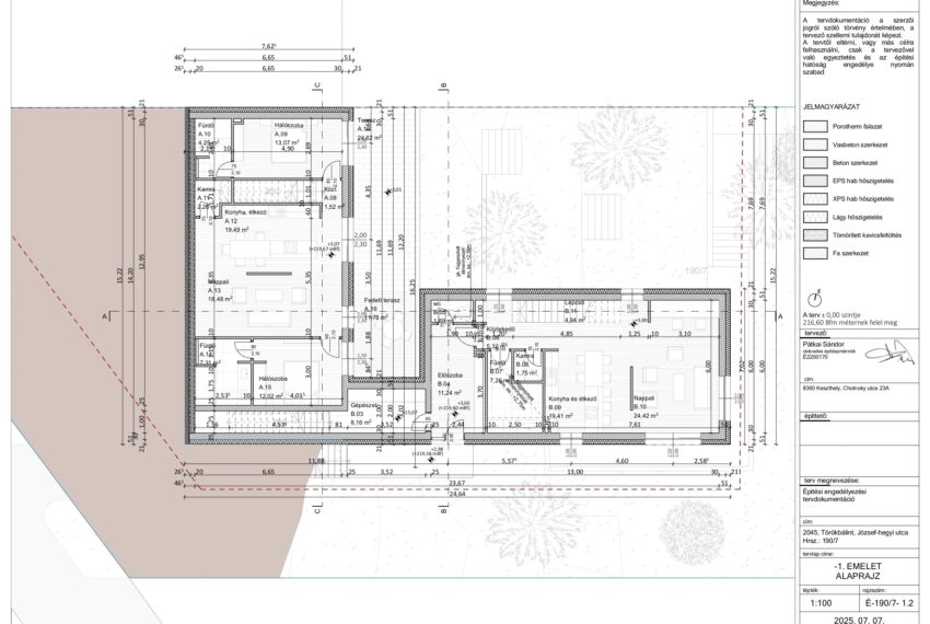
Földszint: Nappali, konyha étkezővel, kamra, hálószoba gardróbbal, hálószoba és két fürdőszoba
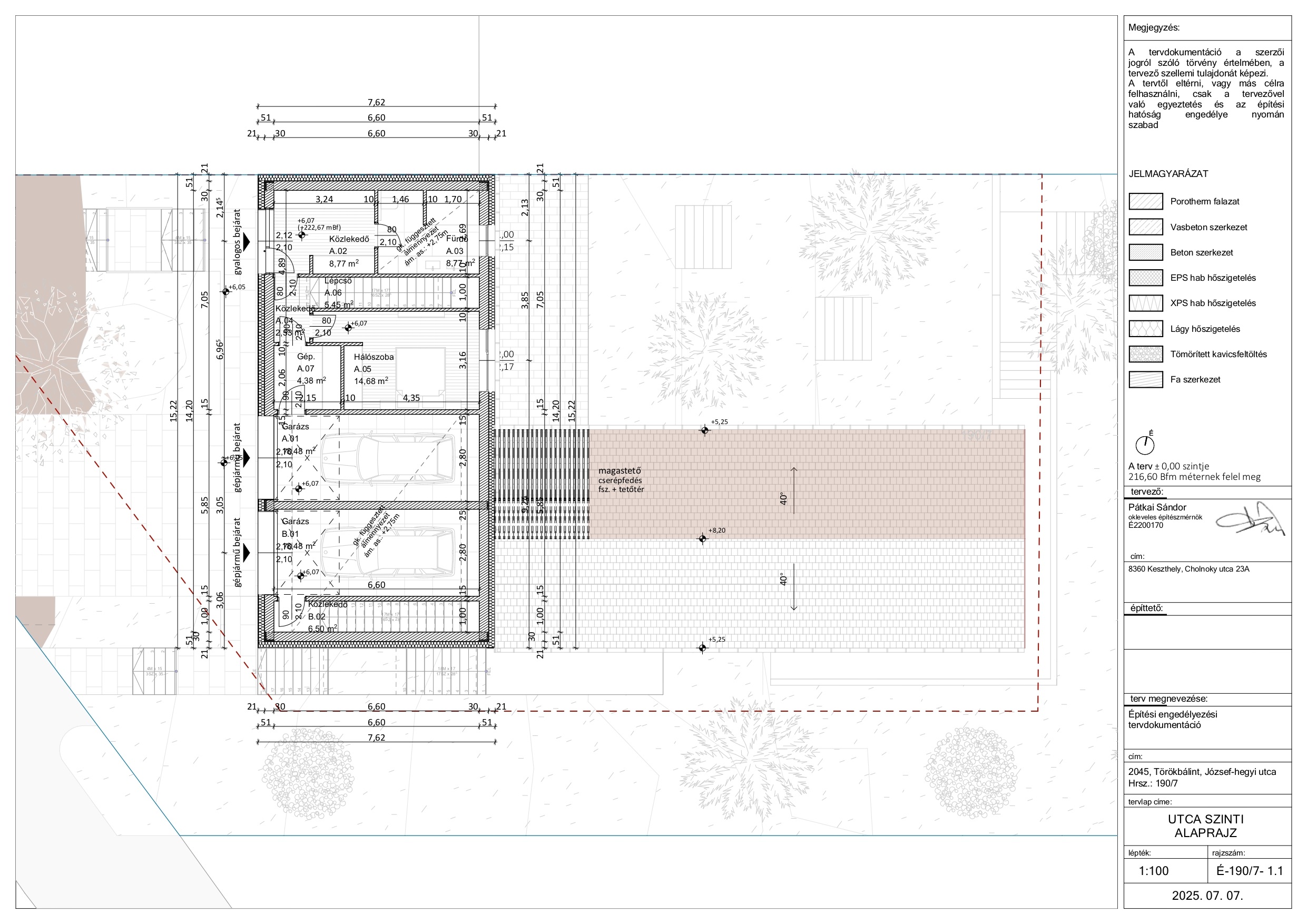
2.szint: hálószoba, gépészeti helyiség, fürdőszoba, közlekedő és garázs.
Ennek az ingatlannak a kulcsrakész ára: 191,7M Ft
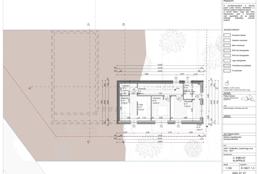
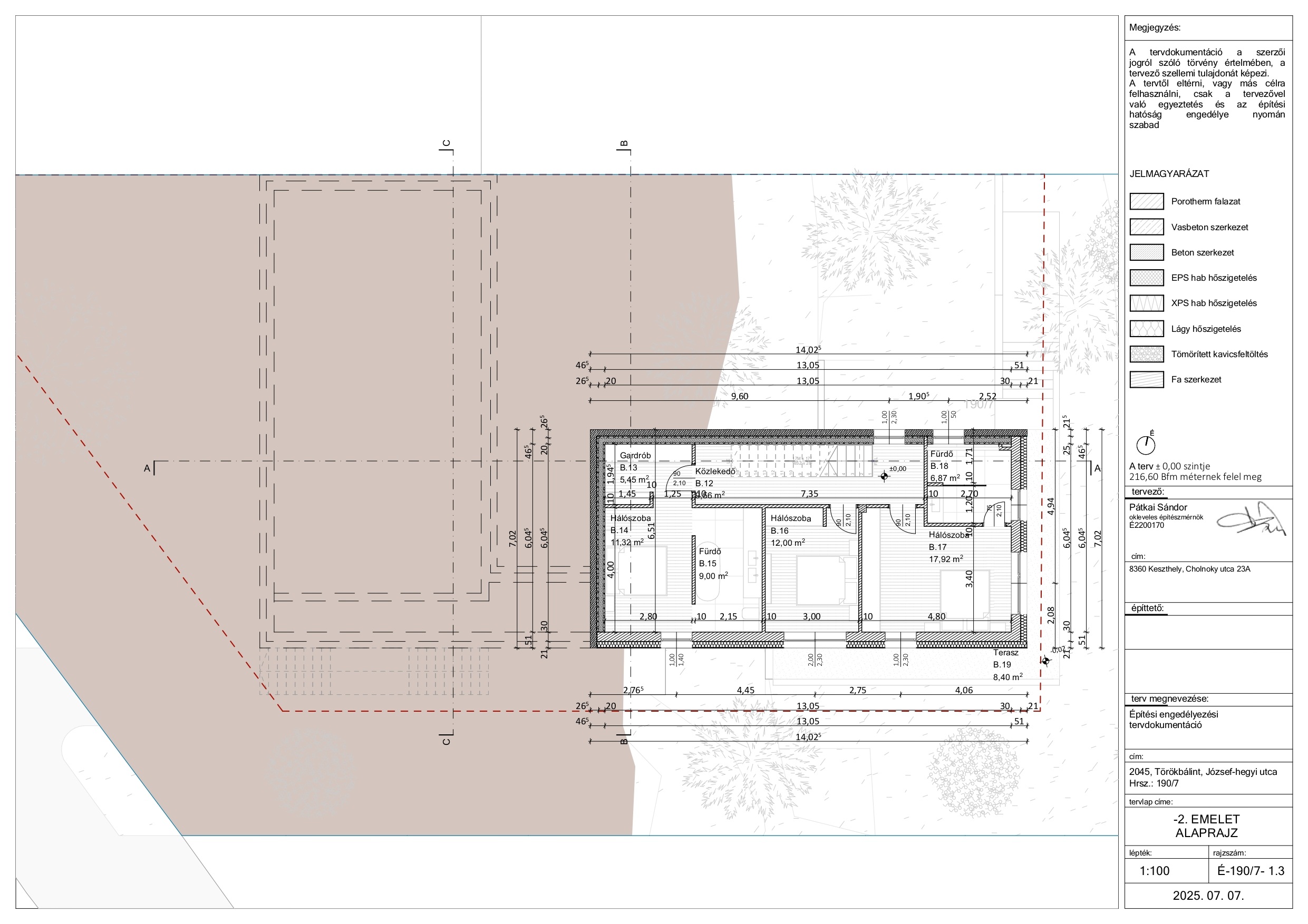
175nm lakás elrendezése:
0. szint:
három hálószoba, két fürdőszoba, gardrób és közlekedő
1. szint:
Nappali, konyha étkezővel, kamra, hálószoba, fürdőszoba és közlekedő, gépészeti helyiség
2. szint:
garázs és közlekedő
Ennek az ingatlannak a kulcsrakész ára: 237M Ft
Főbb műszaki adatok:
Falazat:
Fő fal: Wienerberger/Leier 30-as profi csiszolt tégla,
válaszfal: Leier / Wienerberger 10-es válaszfaltéglák a megfelelő huzalerősítéssel
szigetelés: 20cm-es EPS hungarocell szigetelés
Tető: Betoncserép, 33-as aluminium eresz, 30 cm-es szálas szigetelés, vakolt hatású eresz dobozolás
Külső nyílászárók: kívül antracit belül fehér, 3 rétegű üvegezésű műanyag ablakok és erkélyajtó
Fűtés, melegvíz: Levegő-víz Hőszivattyú H tarifával, padlófűtés és mennyezet hűtés, 300 L HMV tároló hőszivattyúhoz
Extrák: nyitott beálló, örökpanoráma, gépészeti helyiség/tároló/mosókonyha, elektromos alumínium redőnyök, padlófűtés/hűtés, mennyezet hűtés/fűtés, riasztó, elektromos autó töltő,
Igény szerint a konyhabútort is elkészítik.
Környék nagyon szép, rendezett és biztonságos és a közlekedés is könnyen megoldható.
Az építkezés várhatóan 2025 elején kezdődik el és 2025 decemberében lesz költözhető!
Referencia munkát tudunk mutatni!
További részletek
- Ingatlanazonosító
- BIX-00438
- Ár
- 191.700.000 Ft. Ft
- Státusz
- Eladó
- Elhelyezkedés
- Törökbálint
- Típus
- ház
- Ház típusa
- családiház
- Emelet
- Méret
- 315m²
- Méret
- 441m²
- Háló
- 5
- Fürdő
- 3+3
- Garázs
- 2
- Építési mód
- tégla
- Állapot
- újépítésű
- Fűtés
- elektromos
- Közművek
- villany csatorna víz








