Leírás
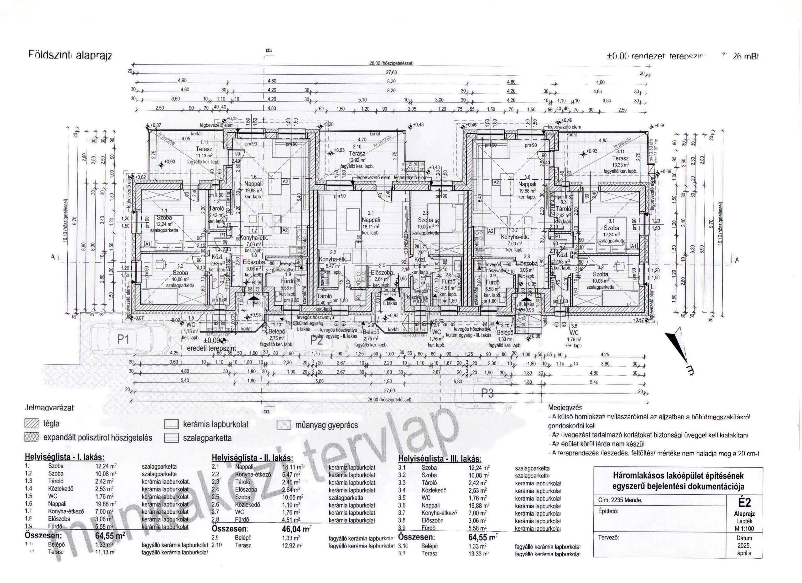
Újépítésű, egyszintes sorház két szélső lakása még eladó! Nagyszerű lehetőség pároknak és egy gyerekes családoknak!
Mende csendes utcájában, most épülő sorház két szélső 64,55nm-es nappali+2 szobás lakása, saját kerttel eladó.
Az egyik lakáshoz 277nm kert tartozik a másikhoz 220nm.
Helyiségek: Amerikai konyhás nappali, 2 szoba, előszoba, fürdőszoba, mosdó, tároló valamint a nappaliból és az egyik szobából nyíló terasz.
Műszaki adatok: Tégla falazat, 20cm dryvit szigetelés
Tető: cserép héjazat
Ablakok: 5 légkamrás 3 rétegű üveggel ellátott nyílászárók
Fűtés és melegvíz: hőszivattyú, padlófűtés
Burkolatok: választhatóak 4500,-Ft/nm -ig benne vannak a kulcsrakész árban
Költözés időpontja: 2025. december
Kulcsrakész ár: 62,5M Ft
További részletek
- Ingatlanazonosító
- BIX-00447
- Ár
- 62.500.000 Ft. Ft
- Státusz
- Eladó
- Elhelyezkedés
- Mende
- Típus
- ház
- Ház típusa
- sorház
- Emelet
- Méret
- 64,55m²
- Méret
- 277m²
- Háló
- 2
- Fürdő
- 1
- Építési mód
- tégla
- Állapot
- újépítésű
- Fűtés
- elektromos
- Közművek
- villany csatorna víz




